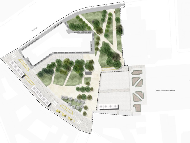
Home/Piazza Santo Stefano, pronto il progetto per renderla pedonale/Piazza-Santo-Stefano Piazza-Santo-Stefano