Piazza Santo Stefano, pronto il progetto per renderla pedonale

Milano, 15 ottobre 2025 – Sarà presentato oggi, in Commissione Urbanistica e Verde del Municipio 1, il progetto di fattibilità tecnico economica per la riqualificazione di piazza Santo Stefano.
L’area e la sua rinascita, già oggetto del Bilancio partecipativo nel 2017, sono considerate prioritarie per l’Amministrazione comunale. Il Comune di Milano, infatti, con questo progetto persegue l’obiettivo di restituire al luogo – oggi utilizzato come parcheggio per le auto – la sua funzione originaria, ovvero quella di incontro, sosta e relazione, in particolare per studenti e studentesse, lavoratori e lavoratrici, tenendo in equilibrio la tutela del patrimonio storico-artistico con l’innovazione e la sostenibilità.
“Prosegue il nostro impegno – afferma l’assessora all’Arredo urbano, Quartieri e Decentramento Gaia Romani – per restituire lo spazio pubblico alle persone. Siamo molto felici di annunciare quella che consideriamo una vera e propria rinascita per questa piazza, rimasta troppo a lungo uno spazio riservato quasi esclusivamente alle auto. Con un’importante riqualificazione, non solo restituiamo al luogo la sua funzione storica, ma consegniamo alle studentesse e agli studenti dell’Università Statale, così come a chi lavora nel centro storico, una vera agorà pubblica, dove potersi fermare, incontrare e vivere momenti di pausa in un ambiente finalmente bello e accogliente”.
“Quello in piazza Santo Stefano è un progetto importante di riqualificazione ambientale e sociale, fortemente voluto anche dal quartiere e dal Municipio 1. Ogni anno, durante il No Parking Day della Milano Green Week, vediamo quanta voglia c’è da parte di cittadini, cittadine e famiglie di avere nuovi spazi verdi, liberi dalle automobili, per ritrovarsi e vivere sempre di più e meglio la città. Con questo progetto, che ben rappresenta il nostro impegno di ridurre le isole di calore, di rendere drenanti i suoli delle nostre strade e delle nostre piazze, di piantare nuovi alberi, trasformiamo una piazza monumentale oggi prevalentemente occupata da auto in sosta in uno spazio verde, accessibile, accogliente – afferma l’assessora all’Ambiente e Verde Elena Grandi –. Un nuovo tassello che si unisce ai tanti altri interventi di de-impermeabilizzazione dei suoli che faranno sempre più della nostra città una ‘città spugna’ ”.
“Con l’intervento su piazza Santo Stefano – dichiara il Presidente del Municipio 1 Mattia Abdu – si completa un percorso di riqualificazione che ha interessato l’intero quadrante attorno al Duomo. Nell’ultimo decennio, le amministrazioni di centrosinistra sono intervenute in diverse aree strategiche, penso a piazza Missori, largo Augusto, largo Richini, via Pantano, piazza San Babila e Cordusio, trasformando snodi un tempo dominati dal traffico veicolare in spazi restituiti alla fruizione pedonale”.
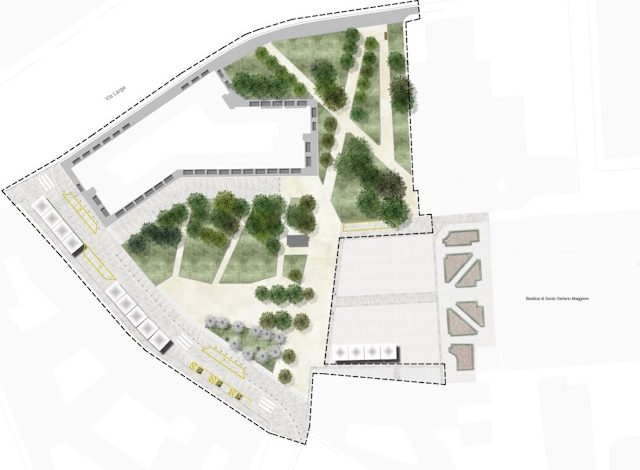
La riqualificazione interesserà un’area di circa 4.500 metri quadrati e prevede la rimozione delle pavimentazioni in asfalto e la realizzazione di una nuova pavimentazione in materiali invalsi nella tradizione milanese, quali masselli, lastre, cordoni di recupero e il “calcestre”, per favorire la permeabilità del suolo e l’integrazione con l’ambiente storico e monumentale circostante.
La nuova configurazione della piazza ridisegna lo spazio pubblico nella sua vocazione pedonale, con percorsi accessibili, nuovi arredi urbani e un sistema di illuminazione efficiente e a basso impatto energetico.
Una parte significativa del progetto è rappresentata dalla nuova progettazione del verde. Verranno infatti realizzate nuove aree per un totale di circa 1800 mq, arricchite da essenze arbustive e graminacee nell’ala sinistra del sagrato e lungo via Larga/via Brolo, che riprende vita e importanza come asse di collegamento di parti importanti del tessuto storico, ovvero Verziere, Santo Stefano, via Festa del Perdono.
La composizione agronomica proposta dovrà favorire resilienza climatica e interesse stagionale, con alberature e arbusti che porteranno zone ombreggiate e nuove fioriture. La scelta di specie autoctone, infatti, riduce il fabbisogno idrico e di manutenzione, favorendo un ecosistema urbano sostenibile, nel rigoroso rispetto delle alberature esistenti.
La soluzione progettuale di piazza Santo Stefano è stata sviluppata in coerenza con i vincoli monumentali, paesaggistici e archeologici presenti sull’area.
Cs e Ph Comune di Milano




